Skip to content
ROOMING HOUSE CLASS 1A TO 1B CONVERSIONS
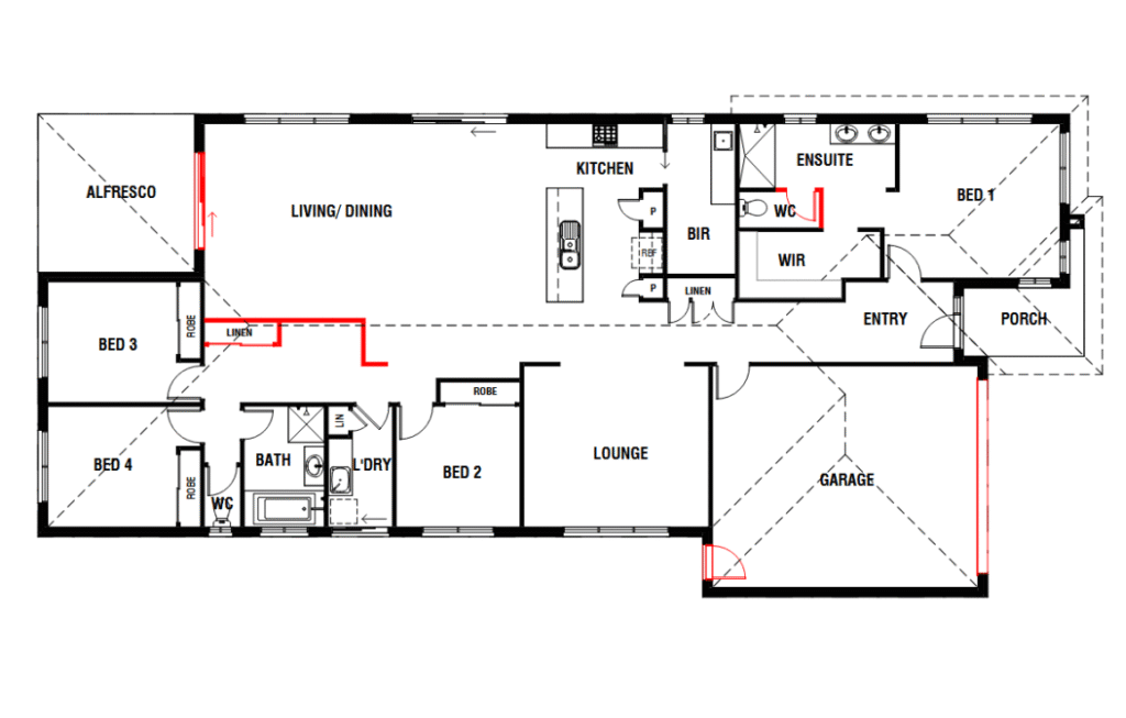
CONVERSION IN TEMPLESTOWE VIC
Before
WEEKLY RENTAL INCOME $560

3

2

After
WEEKLY RENTAL INCOME $2,250

9

8

CONVERSION IN ROSANNA VIC
Before
WEEKLY RENTAL INCOME $630

4

2

After
WEEKLY RENTAL INCOME $2,400

9

9

WHAT WE CAN DO FOR YOU

Whether you have a single or double-storey home, or a property on a large or small block, we can collaborate with you to adapt your design into a functional rooming house.

Every property is unique, and we take the time to create layouts that make the most of your existing space, all while delivering strong rental returns.

Many investors experience weekly rental income that can be more than three times higher than with a traditional lease. By converting your property, you can significantly boost average residential yields, achieving stronger cash flow and long-term growth.

Turning my house into a rooming house was much easier than I expected, thanks to Accommodation Innovation. They helped me through the whole process and explained everything in a way that was easy to understand.

I didn’t have to worry any paperwork as they took care of it all. The team was always quick to respond when I had questions”

James T.